An old house and its tower
Date: 2022
Location: Verfeuil, Gard, France
Surface: 280 sqm
Budget: 120k Euros HT (work in progress)
Tasks: project design
Project status: Planning permission granted, works in progress
Co-worker: Giuseppe Leone
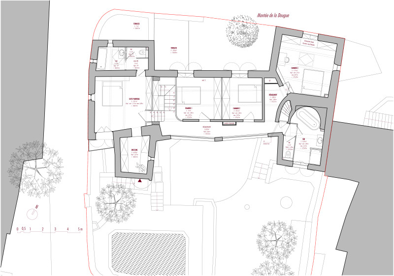
It's about the renovation of an old house in the small village of the south of France.
We basically try to modify the interior distribution for the new owners. The external stayed the same.



