A new terrasse in the city center
Date: 2020
Location: Fayence, Var, France
Surface: 52 sqm
Budget estimé : 40k Euros HT (unrealized project)
Tasks: survey, project
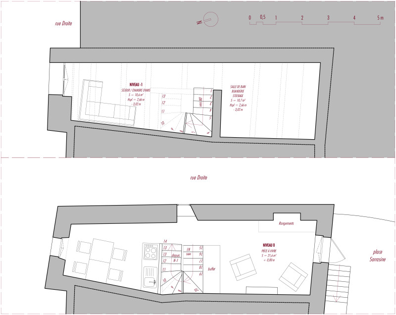
Super small house in the heart of Fayence, a small village in the south of France. 4 floors for a surface of 52 sq
The project wants to update the energy performance and review all the interiors design and distribution
      
      
      
      
      
      
    

