Survey
TLM Team est une équipe d'architectes qui travaille en ligne depuis l'Italie, la France et l'Allemagne pour la réalisation de relevés de bâtiments grâce au LaserScan.
TLM Team est composée de Giuseppe Leone [GL], Chiara Mangiameli [CM], Marco  Masuzzo [MM], Giovanni Musumeci [GM], Marina Terranova [MT], Nicola Timpanaro [NT], Julien Timpanaro [JT] et travaille en étroite collaboration avec Nuage de points.
D'autres collaborations avec Studio bt [BT]
Certains relevés ne peuvent pas être diffusés pour des raisons de droit. Il est possible de consulter les documents lors d'une rencontre en présentiel ou distanciel.
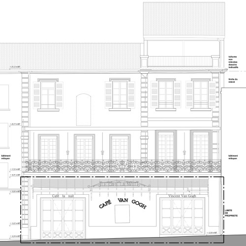
Café de la nuit, Arles, France
Relevé interne et façade sur rue
2022_[GL+MT+JT]


Conseil général du Vaucluse, Avignon, France
relevé complet
2013_[JT]


Eglise de Saint-Nicolas, Pertuis, France
relevé complet
2012_[JT]


Crypte de Lemenc, Chambéry, France
relevé de l'ensemble de la crypte
2014_[BT+JT]


Château de Versailles, France
relevé interne
2022_[GL+MM+JT]
** droits d'auteurs sur les dessins et les images. Il est possible de consulter les documents lors d'une rencontre en présentiel ou distanciel
Château de Versailles, France
relevé des façades des cours internes
2022_[GL+JT]
** droits d'auteurs sur les dessins et les images. Il est possible de consulter les documents lors d'une rencontre en présentiel ou distanciel
Cathédrale Saint-Louis, Versailles, France
relevé des façades en pierre à pierre
2015_[NT+JT]
** droits d'auteurs sur les dessins et les images. Il est possible de consulter les documents lors d'une rencontre en présentiel ou distanciel
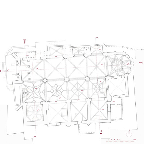
Cathédrale Saint-Lazare, Autun, France
Relevé intégral
2022_[GL+CM+MM+GM+MT+JT]
** droits d'auteurs sur les dessins et les images. Il est possible de consulter les documents lors d'une rencontre en présentiel ou distanciel
Château de Vaison La Romaine, France
relevé des plans, façades, coupes et remparts
2023_[GL+MT+JT]
** droits d'auteurs sur les dessins et les images. Il est possible de consulter les documents lors d'une rencontre en présentiel ou distanciel
Château de Purnon, France
Relevé interne
2022_[GL+CM+JT]
** droits d'auteurs sur les dessins et les images. Il est possible de consulter les documents lors d'une rencontre en présentiel ou distanciel
Eglise de Saint-Firmin, Gordes, France
Relevé complet de l'église
2015_[JT]
** droits d'auteurs sur les dessins et les images. Il est possible de consulter les documents lors d'une rencontre en présentiel ou distanciel
Mémorial du débarquement en Provence, Toulon, France
Relevé complet du mémorial
2015_[JT]
** droits d'auteurs sur les dessins et les images. Il est possible de consulter les documents lors d'une rencontre en présentiel ou distanciel
Tour carrée, Cuffies, France
Relevé complet
2015_[JT]
** droits d'auteurs sur les dessins et les images. Il est possible de consulter les documents lors d'une rencontre en présentiel ou distanciel