Aménagement interne d'un appartement en centre ville et sa terrasse
Date : 2022
Lieu : Avignon, Vaucluse, France
Surface : 40 m²
Budget : 40k Euros HT
Mission confiée : réalisation du projet et dépôt d'un permis de construire
Situation du projet : Permis de construire obtenu, travaux terminés
Collaborateur : Giuseppe Leone
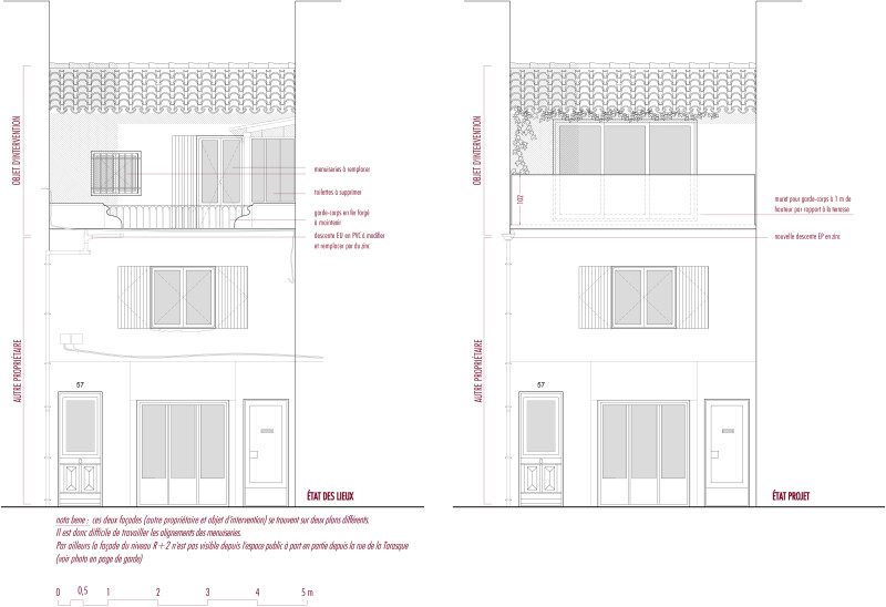
Il s'agit de l'aménagement interne et externe d'un appartement en centre-ville et de sa terrasse. La difficulté a été de composer l'espace externe et d'obtenir l'accord de l'architecte des bâtiments de France car il s'agit là d'un secteur sauvegardé.


