Création d'une mezzanine dans un loft
Date : 2017
Lieu : Avignon, Vaucluse, France
Surface avant travaux : 36 m²
Surface après travaux : 44 m²
Budget : 70k Euros HT
Mission confiée : relevé du bâtiment, réalisation du projet, dépôt de déclaration préalable, direction des travaux
Situation du projet : permis de construire obtenu, chantier réalisé
collaborateur pour la création et fabrication de l'escalier bois : Marco Terranova
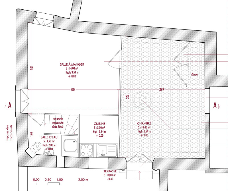
Il s'agit d'un appartement de 36 m² avec 10 m² de terrasse au 1er niveau d'un immeuble, situé au cœur d'Avignon entre une place très animée et un parc urbain.
La maîtrise d'ouvrage souhaitait réaliser une étude avec comme objectif d'optimiser l'espace et d'en conserver le cachet (les tomettes en terre cuite et le plafond avec les moulures et la rosace).
Ce logement vétuste se révèle assez lumineux (est/nord/ouest + toiture). Une partie du faux-plafond a été déposée afin de gagner de la hauteur sous la toiture rampante et l'ancienne entrée a été restaurée par l'ancienne cage d'escalier fin XIXe, l'entrée ayant été obstruée afin de gagner de la place et une flexibilité d'aménagement.
Le projet propose de créer un cube en bois où concentrer les nouveaux services tels que salle de bain, toilettes et cuisine. Ces services nécessitent une hauteur sous-plafond de 2,30 m ce qui permet de prévoir une chambre à coucher au-dessus de cette structure et de gagner 10 m². Une nouvelle ouverture a été créée sur la terrasse à l'identique de l'existante. L'isolation en fibre de bois garantit un meilleur confort. Tous les matériaux utilisés sont compatibles avec les bâtiments anciens : la chaux aérienne, le bois, la cire... Par ailleurs ils ont un impact réduit sur l'environnement car ils sont recyclables, durables dans le temps et meilleurs pour la santé des occupants et des poseurs.
En conclusion, nous avons valorisé l'existant, amélioré le confort interne, optimisé l'espace et la lumière avec des matériaux nobles.





